Доставка по всей России!
Резервуар вертикальный РВС 150 м³
На хранилищах нефтепродуктов, в резервуарных парках с различной цикличностью наполнения/слива веществ с жидкой и вязкой средой используют резервуары вертикальные стальные (РВС), производимые по техническим условиям ГОСТ 31385-2016. Завод Резервуаров и Негабаритных Металлоконструкций предлагает оформить заказ и купить сертифицированный резервуар вертикальный РВС, объемом 150 м³ по цене производителя.
Описание
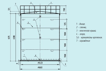
РВС 150 м³ – это наземная металлическая сварная конструкция из стального листового материала. Резервуар имеет цилиндрическую форму. Стенку цилиндра формируют из 4 поясов. Конструкция устанавливается на специально выполненный фундамент, вертикально на круглое днище. Крыша выполнена с конусностью. В номенклатуре вертикально расположенных емкостей, РВС классифицируется как стальной резервуар со стационарной крышей, без понтона.
РВС, объемом 150 м³ оборудован лестницей, переходящую в площадку с ограждением. В стенке и крыше резервуара, в зависимости от назначения и технологических целей, устанавливают патрубки, опоры под трубную обвязку, смотровые люки и кронштейны для крепления оборудования и лестницы.
Таблица 1. Габаритные размеры и типовые размеры элементов конструкции
|
Параметр |
Значение |
|
Внутренний диаметр, мм |
5400 |
|
Диаметр днища – соответствует габариту ширины изделия, мм |
5650 |
|
Толщина днища, мм |
8 |
|
Высота стенки цилиндра, мм |
6500 |
|
Габарит высоты, мм |
7515 |
|
Высота ограждающей конструкции, мм |
1000 |
|
Высота крыши, мм |
324 |
Толщина стенки от 5 до 8 мм. Теоретический вес РВС 150 м³ в типовой комплектации ≈11,500 тонн.
Технология производства
В цехах Завода РиНМ производят следующие операции;
В месте монтажа сборка резервуара производится методом рулонирования. Соединения рулонных заготовок, стенки, днища и крыши осуществляют двусторонними стыковыми швами, с полным проплавлением.
На предприятии применяется аттестованные сварочные материалы и технологии. Сварщики высокой квалификации проходят подготовку с проверкой теоретических знаний и практических навыков выполнения стыковых, тавровых, угловых и в нахлесточных сварочных соединений.
Надежность конструкции
Проект на изготовление резервуара вертикального, объемом 150 м³включает расчеты на надежность металлоконструкции. При расчетах учитывают:
Контроль над номинальными рабочими параметрами и характеристиками внешней среды осуществляют с помощью контрольно-измерительных приборов. Надежность резервуара обеспечивается:
Прочность, устойчивость, защита от деформации геометрической формы и нарушения герметичности достигаются кольцами жесткости на поясах стенки. Условия эксплуатации и требования к надежности конструкции определяют выбор материалов, утепления, защитных мер от коррозии.
Таблица 2. Материальное исполнение
|
Наименование |
Виды, применяемые в разных условиях |
|
Сталь корпуса |
В зависимости от зимних температур в месте эксплуатации – Ст3сп, 16 ГС, 09Г2С, 12Х18Н10Т, аналоги, согласно проекту
|
|
Антикоррозийная защита |
Припуски на коррозию при выборе толщины стенок. Наружная, внутренняя поверхности – цинкование, грунтовка ГФ-021, эмалевое покрытие ПФ-115 |
|
Утепление, регулировка температуры среды |
Минеральные плиты с внешней оцинкованной облицовкой, защитные кожухи, теплообменники, электрокабель, пенополиуретановая изоляция |
При заполнении опросного листа следует указать: класс резервуара, условия эксплуатации, свойства хранимой среды и конструктивно-технологические параметры. Специалисты компании произведут расчет стоимости резервуара вертикального РВС 150 м³, из материалов, которые обеспечат максимально возможный срок службы, без нарушения целостности конструкции в заданных условиях. Предлагаем убедиться, что наша цена – оптимально невысокая, с учетом высокого качества.
Преимущества РВС 150 м³ от Завода РиНМ
На Заводе РиНМ, в соответствии ГОСТ 31385-2016, внедрена система менеджмента качества. На регулярной основе проводятся мероприятия внешнего и внутреннего аудита, исключающие некорректные процессы в проектировании, снабжении материалами и изготовлении. Сталь и комплектующие сертифицированы на предмет соответствия техническим условиям нормативных документов.
Выгодно купить в одном заказе: проектирование, изготовление рулонных заготовок, полную комплектацию, доставку и монтаж. Заказчик получает:
Резервуары вертикальные, объемом 150 м³нашли применение не только в нефтяной и нефтеперерабатывающей отросли. Предоставляем возможность купить РВС общепромышленного назначения. Емкости 150 м³ используют для размещения запасов технической воды, противопожарного ресурса и ГСМ. Они решают проблему хранения жидкостей и сыпучих веществ на химических, пищевых и сельскохозяйственных предприятиях.
Звоните по номеру службы продаж Завода Резервуаров и Негабаритных Металлоконструкций или отправьте техническое задание на электронный адрес, указанный на сайте. Ответим на все вопросы, согласуем взаимовыгодные условия.
Цены от производителя
Гарантия качества
Комплектация объектов под ключ
Производим монтаж/демонтаж
Оперативная доставка в любой регион
Быстрые сроки поставки,
четкое соблюдение сроков
Персональный подход
Гарантийное обслуживание
Разработка КМД от 2-х
рабочих дней
Составление КП от 15 минут
Подготовим коммерческое предложение
с учетом ваших индивидуальных технических требований
Чтобы избавить Вас от необходимости поиска логистической компании, мы готовы взять на себя работу по осуществлению доставки оборудования на Ваш объект.
Преимущества осуществления доставки при помощи нашей компании:
Свяжитесь с нашим менеджером по телефону или через форму сайта и мы подготовим для Вас расчет.